欢迎访问 深圳市立德管理顾问有限公司 !         微信服务号 ldqyfw         微博立德企业服务         邮箱:lideqiye@126.com         QQ:5233 1848         立即咨询         客户登陆        

Li De Corporate Services

深圳市立德管理顾问有限​公司

137 5115 3541​

         深圳公司注册       前海公司注册       香港公司注册       外资公司注册          专业刻章              变更公司              注销公司               公司转让
         劳务资质申请   食品经营许可证申请    各种批文              网络营销              员工福利               法律服务             新闻中心                微课堂
             注册商标               申请专利               著作权              开公司账户            记账报税         申请一般纳税人      申请进出口权      高新技术认定
当前位置:
有证才能经营 食品许可找立德 
最快7天极速取证,办理速度超同行20%左右
食品经营许可证 申办流程 
食品经营许可证 申办材料 

准备材料:


1、《食品经营许可证》申请书1份;
2、《营业执照》复印件1份;
3、法人(负责人)、食品安全管理人员身份证复印件各1份;
4、食品安全人员、从业人员《健康证明》复印件各1份;
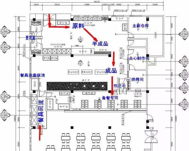
5、经营场所功能平面图1份;
6、门牌、经营场所图片各1份;(需A4纸打 印彩色照片)
7、房屋产权证明和房屋租贷合同复印件各1份;
8、食品安全培训资料;
9、食品安全制度、食品安全承诺书和突发事 件应急处置预案;
10、食品经营许可现场核查表;

11、委托人办理的须提交被委托人的身份证复印件、委托书各1份;


注:


1、申请《食品经营许可证》所提交的材料应当真实合法、有效,符合相关法律法规规定。申请人应当对其提交的材料合法性、真实性、 有效性负责;


2、以上提交的材料为复印件的需核对原材料并标明“与原件一致”按手印确认。
申办实力 
已成功8963件许可证,超7千企业选择了我们
     8年服务经验                                30名服务顾问                           100项行业荣誉资质                       超7000家企业客户                   涵盖超过300个服务项目                  99.6%客户好评率
成功案例